Bilocale in vendita

Roma, Via di torrevecchia - Gasparri
€ 175.000
Prezzo aggiornato
2 locali 2 locali
60 Mq 60 Mq
1 bagno 1 bagno

Bilocale in vendita

Roma, Via di torrevecchia - Gasparri

Descrizione annuncio

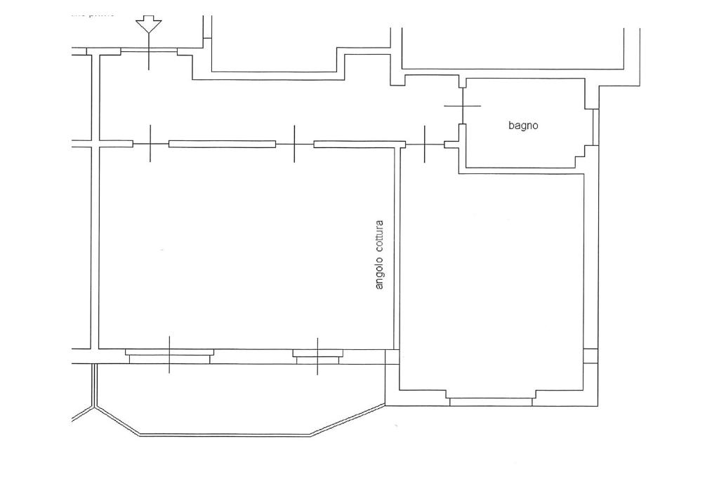
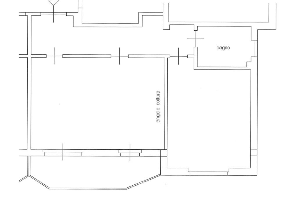
COMODO BILOCALE CON BALCONE – LUMINOSO

L'agenzia Tecnocasa Gasparri propone la vendita di una soluzione immobiliare ideale per chi desidera vivere in una zona ben servita e con numerose comodità a portata di mano.

Nella parte più centrale e commerciale di Torrevecchia adiacente Largo Nella Mortara , posto al 1° piano di una palazzina in tinta senza ascensore e composto da: ingresso, soggiorno con angolo cottura, camera, bagno finestrato e balcone.

L'immobile è estremamente luminoso grazie alla sua esposizione a sud, si presenta allo stato originario e offre un'ottima opportunità per chi desidera personalizzare gli spazi secondo le proprie esigenze.

Collegamenti: La vicinanza alle diverse attività commerciali e scuole, nonché alle principali arterie stradali, rendono la proprietà interessante per chi cerca una soluzione abitativa tranquilla, fuori dal caos ma allo stesso tempo vicina al contesto urbano e quindi servita da mezzi pubblici di superficie che permettono di raggiungere velocemente la metro A Battistini e il policlinico Gemelli, nonché alla fermata del trenino FM 3 Gemelli.

Mostra tutto

Nelle vicinanze

Trasporto pubblico Trasporto pubblico
Battistini
Battistini
2,1 Km
Cornelia
Cornelia
2,9 Km
Gemelli
Gemelli
1,1 Km
stazione di Roma Monte Mario
stazione di Roma Monte Mario
1,6 Km
Torrevecchia/Val Favara
Torrevecchia/Val Favara
10 m
Ricariche auto elettriche Ricariche auto elettriche
Eneldrive Battistini
2,1 Km
Axpo - Stazio
2,5 Km
Rome Cavalieri, A Waldorf Astoria Resort
2,8 Km
Scuole Scuole
Scuole
260 m
Istituto Professionale Stendhal
750 m
Taggia
820 m
Istituto d'Istruzione Superiore Cartesio
900 m
Istituto di Istruzione Secondaria Superiore Alberghiero Agrario Domizia Lucilla
990 m
Farmacia Farmacia
Farmacia Colapinto
390 m
Farmacia
880 m
Farmacia Andersen
950 m
Farmacia Pineta Sacchetti
1,0 Km
Farmacia Gemelli
1,2 Km
Ospedali Ospedali
Ospedali
400 m
Pronto Soccorso Ospedale "Cristo Re"
970 m
Ospedale Cristo Re
990 m
Hospice Villa Speranza
1,2 Km
Complesso Integrato Columbus
1,4 Km
Supermercati Supermercati
PIM
250 m
Pim
420 m
Alta
710 m
Conad
820 m
Carrefour Market
940 m
Negozi Negozi
Oviesse
240 m
Micros
820 m
CRAI
980 m
Mini Market
1,1 Km
Negozi
1,2 Km
Bar Bar
Caffè Van Gogh
930 m
Bar Centodolci
1,0 Km
GM Bar
1,1 Km
dello Studente
1,1 Km
Ghisbi Bar
1,2 Km
Ristoranti Ristoranti
La Villetta
380 m
Happy Hours
440 m
Taverna Sacchetti
970 m
Ponypizza Pineta Sacchetti
990 m
Ferro Officina del Gusto
1,0 Km
Mostra tutto

Caratteristiche

Rif.:
61153129
Piano:
1 di 4 (Piano basso)
Balconi:
1
Camere da letto:
1
Arredamento:
Assente
Condizionamento:
Assente
Mostra tutto
Prezzo Prezzo
€ 175.000
Rata mutuo Rata mutuo
€ 825 / mese
Spese annue Spese annue
€ 800
Proponi il tuo prezzoProponi il tuo prezzo

Classe Energetica

F
F
F
F
F
F
F
F
F
EP globale non rinnovabile:
153.46 kW h/m² anno
EP globale rinnovabile:
0.25 kW h/m² anno
EP invernale del fabbricato:
EP estiva del fabbricato:
Anno di costruzione:
1967
Riscaldamento:
Autonomo
Tipo impianto:
A radiatori
Tipo alimentazione:
Metano

Prezzo ridotto di €1 (3%%)

Ti interessa visionare l'immobile?

Fissa un appuntamento  Fissa un appuntamento

Richiedi informazioni

Clicca su Leggi per aprire l'informativa
* Questi campi sono obbligatori

Calcola il tuo mutuo

Semplice e senza impegno
Anticipo

( % )
Mutuo

( % )

pochi semplici passi

inserisci i tuoi dati
Questionario completato
Grazie per aver richiesto un appuntamento senza impegno con un nostro Consulente del Credito e Assicurativo.

Hai inserito correttamente tutti i dati necessari e a breve riceverai una e-mail con un link da convalidare per inviare i tuoi dati.
Affiliato
Gasparri Srl
Via Pietro Gasparri, 104 00168 Roma (RM)

Il nostro staff


  • Massimiliano Di Fino
    Affiliato

  • Sara Teverini
    Coordinatrice

  • Alessandra Basile
    Coordinatrice

  • Francesco Concetti
    Responsabile

  • Alessandra Manzoni
    Affiliata
Via Pietro Gasparri, 104 00168 Roma (RM)
Zona: Torrevecchia - Donaggio - Parco Dei Pini - Pasquale II-Montespaccato-Collina delle MUSE
Mostra su mappa
Orari: dal lunedì al venerdì mattino 9:00 - 19:00; sabato 9:00 - 13:00.
Affiliato
Gasparri Srl
Via Pietro Gasparri, 104 00168 Roma (RM)

2026 Tecnocasa Franchising S.p.A. - P. IVA 08365160152 - Via Monte Bianco 60/A 20089 Rozzano (MI). Ogni agenzia ha un proprio titolare ed è autonoma. Privacy policy | Policy utilizzo | Cookie policy